- トップページ
- 中古住宅をエリアから探す
- 野田市
- 桜の里
- 野田市桜の里 中古戸建





【物件の特徴】
・築浅4LDK!庭スペースも広々!ゆとりある生活が可能!
・角地ならではの空が広く感じる家。歩道のあるきれいな街並みです!
・2つのバルコニーで洗濯やガーデニングなど用途広がる暮らしが出来ます!
【ライフインフォメーション】
・東武アーバンパークライン「清水公園駅」徒歩22分!
・近隣には商業施設が充実!子育て、買い物にも利便性に優れています!
・築浅4LDK!庭スペースも広々!ゆとりある生活が可能!
・角地ならではの空が広く感じる家。歩道のあるきれいな街並みです!
・2つのバルコニーで洗濯やガーデニングなど用途広がる暮らしが出来ます!
【ライフインフォメーション】
・東武アーバンパークライン「清水公園駅」徒歩22分!
・近隣には商業施設が充実!子育て、買い物にも利便性に優れています!
すべての画像
落ち着いたモダンな外観が魅力の住まい。上品さの中にほどよい存在感があり、街並みに自然と溶け込みます
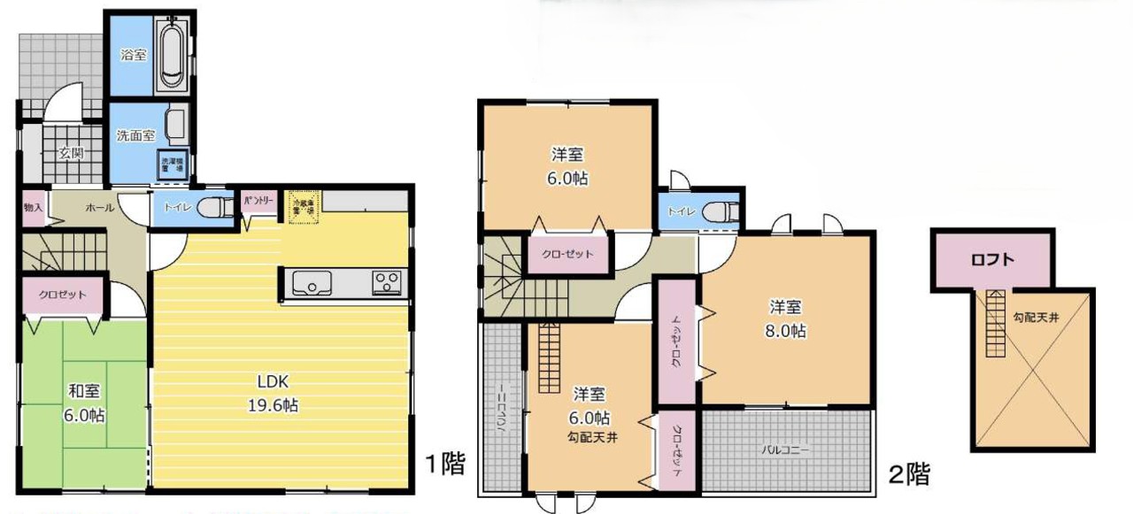
広々としたLDKを中心に、各空間が心地よく繋がる住まい。和室の落ち着きとロフトの開放感が、暮らしに豊かな表情をもたらします
カーポート付きの便利な駐車スペースで、車を守りながら快適な生活を実現します。
LDKは約20帖のゆとりある空間。自然光がたっぷり差し込み、リビング・ダイニング・キッチンが一体となった開放的な暮らしを叶えます。家族や友人との時間もゆったり過ごせる心地よい空間です。
明るい色味のフローリングが広がるLDKは、2面採光で開放感たっぷり。和室の扉を開ければさらにゆとりが生まれ、心からくつろげる空間が広がります。
シンプルモダンな明るいシステムキッチン。洗練されたデザインと使いやすさが魅力で、料理がもっと楽しくなる空間です。
広々とした空間に、デザイン性の高いシステムキッチンが美しく調和。機能性と美しさが両立した、心地よいキッチンです。
見晴らしのよいバルコニーは、ガーデニングも楽しめる心地よい空間。外の風を感じながらリフレッシュできる、ちょっとしたアウトドア気分が味わえます。
担当スタッフより

- 関 優菜
- お客様のご都合に合わせ、いつでも現地をご案内させて頂きますので、ご希望の時間等をお気軽にお申し付け下さいませ。平日、休日、当日、夜のご案内も大歓迎。類似物件や周辺環境もあわせてご案内致します。
物件詳細情報
物件No.20000449451
| 所在地 | 千葉県野田市桜の里2丁目 | ||
|---|---|---|---|
| 交通 | 東武野田線「清水公園」駅徒歩22分 東武野田線「愛宕」駅徒歩31分 東武野田線「七光台」駅徒歩39分 |
||
| 間取 | 4LDK | ||
| 土地面積 | 165.89m² | ||
| 建物面積 | 107.64m² | ||
| 構造・規模 | 木造 2階建て | 築年月 | 2018年10月築 |
| バルコニー | 南西向き | 地目 | 宅地 |
| 用途地域 | 第一種中高層住居専用地域 | 建ぺい率 | 60% |
| 容積率 | 200% | 都市計画 | 市街化区域 |
| 駐車スペース | 2台可(カーポート) | 現況 | 空家 |
| 引渡時期 | 即引渡可 | 権利種類 | 所有権 |
| 接道 | 北側9M公道に接道 西側12M公道に接道 |
小学校区 | 野田市立清水台小学校(1500m) |
| 中学校区 | 野田市立岩名中学校(1950m) | 取引態様 | 媒介 |
| リフォーム |
|
||
| 設備 | 公営水道、本下水、都市ガス | ||
こだわり項目
角地緑豊かな住宅地閑静な住宅地LDK15帖以上リフォーム済み全室2面採光庭小屋裏収納2面以上バルコニーシステムキッチンカウンターキッチン3口以上コンロパントリー(食器・食品の収納庫)トイレ2ヶ所浴室に窓スーパー400m以内公園800m以内陽当り良好通風良好
- ※価格は物件の代金総額を表示しており、消費税が課税される場合は税込み価格です。(1,000円未満は切り上げ。)
税率は引き渡し時期により異なりますので、各物件の詳細につきましてはお問い合わせください。 - ※敷地権利が借地権のものは価格に権利金を含みます。
- ※制作中に内容が変更される場合もありますので、あらかじめご了承ください。
- ※購入の前には物件内容や契約条件についてご自身で十分な確認をしていただくようにお願いいたします。
- ※完成予想図はいずれも外構、植栽、外観等実際のものとは多少異なることがあります。
- ※CG合成の画像の場合、実際とは多少異なる場合があります。
周辺地図
周辺施設一覧
- ショッピングセンター
- スーパー
- コンビニ
- ドラッグストア
- ホームセンター
- 飲食店
- その他店舗
- 商店街
- 大学
- 専門学校
- 高校・高専
- 中学校
- 小学校
- 保育園
- 幼稚園
- 公民館・児童館
- 病院
- 郵便局
- 役所
- 図書館
- 金融機関
- 警察・消防
- 趣味・娯楽施設
- 公園・運動施設
- 周辺の街並み
- 駅
- その他
お問い合せ先
- 株式会社スターホームズ
- お電話でのお問い合わせは
04-7128-7228「ホームページを見た」とお問い合わせください - 千葉県柏市新柏1-16-13 新柏スクエア1階
- 営業時間:9:30〜18:30
- 定休日:年末年始
- 免許番号:千葉県知事免許(2)第17112号
- トップページ
- 中古住宅をエリアから探す
- 野田市
- 桜の里
- 野田市桜の里 中古戸建
























